£700,000 3 Bedroom Bungalow  Sold

Three bedrooms

Bungalow

Garden

Ample Storage

Residents Parking

Chain Free

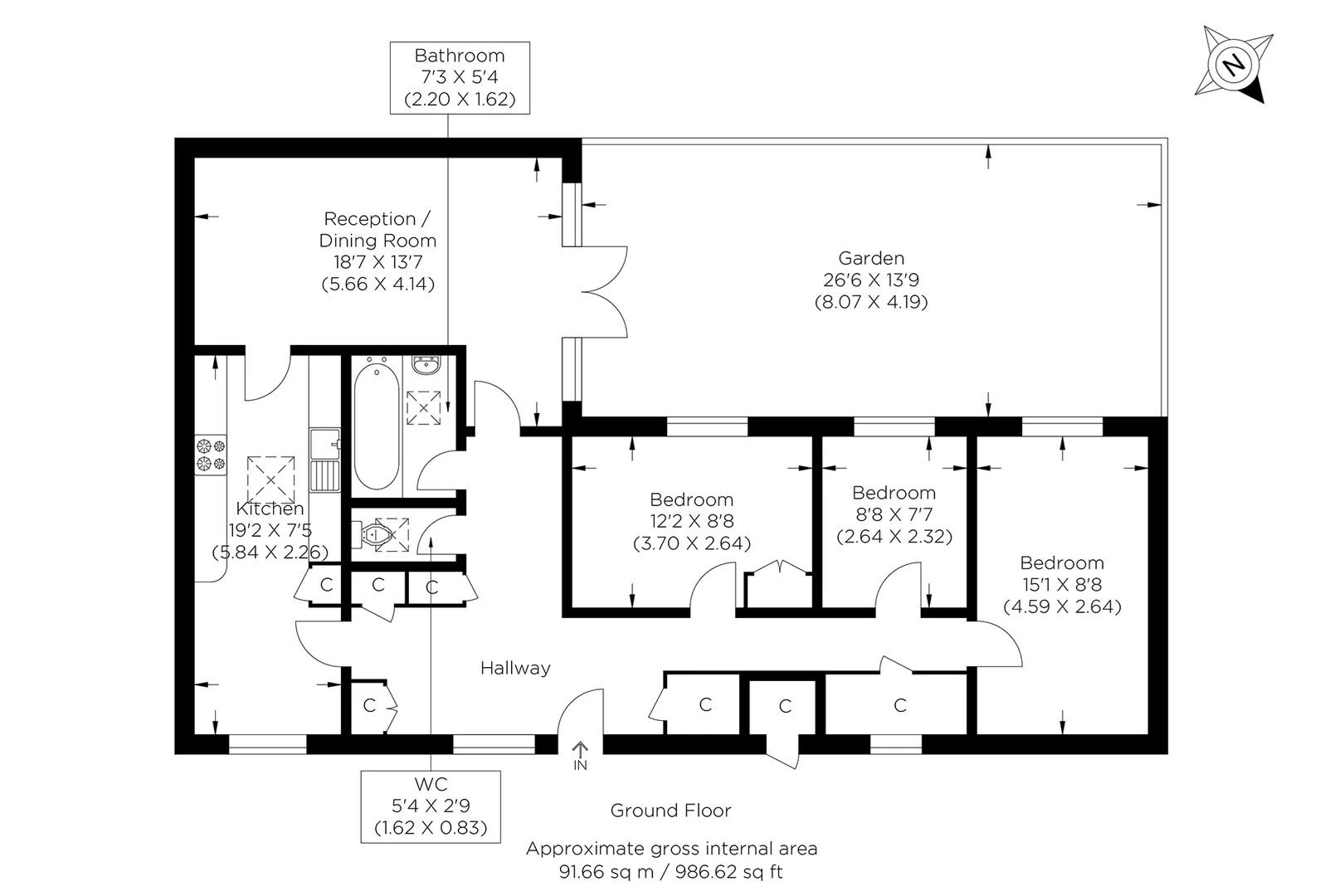
Another Sold in Brinkworth Way, Hackney E9 5JX. Qualified buyers are seeking similar homes to buy. Contact us now if you are thinking of selling. This light and bright three-bedroom bungalow is on the quiet, residential Brinkworth Way in Hackney, E9. It boasts excellent entertaining space and a first-class location, and it is available chain-free. The accommodation comprises a reception room with access to a fantastic-sized private garden, a fitted kitchen, a main bedroom, a double guest bedroom, a further guest bedroom, and a family bathroom. Brinkworth Way is an ideal location in the heart of Hackney Wick and is only moments away from the many local bars, restaurants, and coffee houses. It is also a short walk from the wide open spaces of Victoria Park, Hackney Marshes and the Queen Elizabeth Olympic Park. Local transport links include Hackney Wick Station (Overground) and various bus routes into The City & West End.

Nearest station: Hackney Wick (0.18 miles)
Borough: Tower Hamlets
Council tax band: C
EPC: C
Tenure: Freehold

Virtual Tour

Location

Floor Plan

Floor Plan

Property Images

Photo 1
Photo 2
Photo 3
Photo 4
Photo 5
Photo 6
Photo 7
Photo 8
Photo 9

Arrange a Viewing

This property is currently Sold. To add your name to our Reserve Buyers List, please provide your details below, and we will contact you to discuss your requirements.

Make an Enquiry

This property is Sold, but you can still provide your details below. We will add your name to our Reserve Buyers List and contact you to discuss your property needs.

Mortgage calculator

Mortgage Details

Results

Stamp duty calculation

See full breakdown

Total SDLT due

Below is a breakdown of how the total amount of SDLT was calculated

Up to £0k (Percentage rate 0 %)

Above £0k and up to £0k (Percentage rate 0 %)

Above £0k and up to £0k (Percentage rate 0 %)

Above £0k and up to £0k (Percentage rate 0 %)

Above £0k and up to £0m (Percentage rate 0 %)

Above £om (Percentage rate 0 %)

Please note: This is for illustrative purposes only. The above calculator should not be relied upon when making financial decisions. Please seek advice from a specialist financial provider.

Property Reference: ALEXN_004333

IMPORTANT NOTICE FROM ALEX NEIL

Property descriptions are subjective and used in good faith as an opinion rather than statements of fact. The owner provided information relating to title, tenure, service charges and ground rent information. Therefore, please make specific enquiries to ensure that our descriptions match your expectations of the property. Floor plan measurements are approximate and for illustrative purposes only. Furthermore, we have not tested any services, systems or appliances at this property. And we strongly recommend that you verify all the provided information on inspection and that your surveyor and conveyancer further confirm details. Also, market conditions and property values regularly fluctuate. And showcased sold properties demonstrate our previous successes rather than indicate live property values.

Discover your property's value 

Industry awards

Have confidence knowing you’re partnering with an award-winning agent, honoured with numerous five-star industry accolades for exceptional satisfaction.

Property valuations

Our experienced valuers will provide expert guidance on pricing, market conditions, and a clear, proactive marketing strategy tailored to your needs.

Tailored marketing

We use a multi-channel international marketing strategy, boosting your property’s reach through social media and top UK and global property portals.

Our credentials

All staff members adhere to the Property Ombudsman Code of Practice, ensuring the highest standards of integrity, transparency and customer care.

Fees

Tenant Information

Refundable Holding deposit - 1 weeks rent

Security Deposit 5 weeks rent for annual rental under £50,000, or 6 weeks rent for annual rental over £50,000

Rent - The agreed monthly rent

Changes to tenancy - £50 inc VAT

Early termination charge - Not exceeding the landlord’s financial losses

Late payment of rent Interest of 3% above BoE base rate for each day the rent is late, once it is 14 days overdue

Replacement keys - Reasonable costs

Utilities, council tax, communication services, TV Licence etc Tenants own responsibility unless otherwise stated

Client Money Protection Scheme Membership details Alex Neil are members of CMP (client money protect)

Property Redress Scheme Membership details: Alex Neil are members of The Property Ombudsman. Membership number N00018.