Ropemakers Fields, Limehouse, E14 Offers in excess of £1,500,000

Offers in excess of £1,500,000 4 Bedroom Town House  Sold

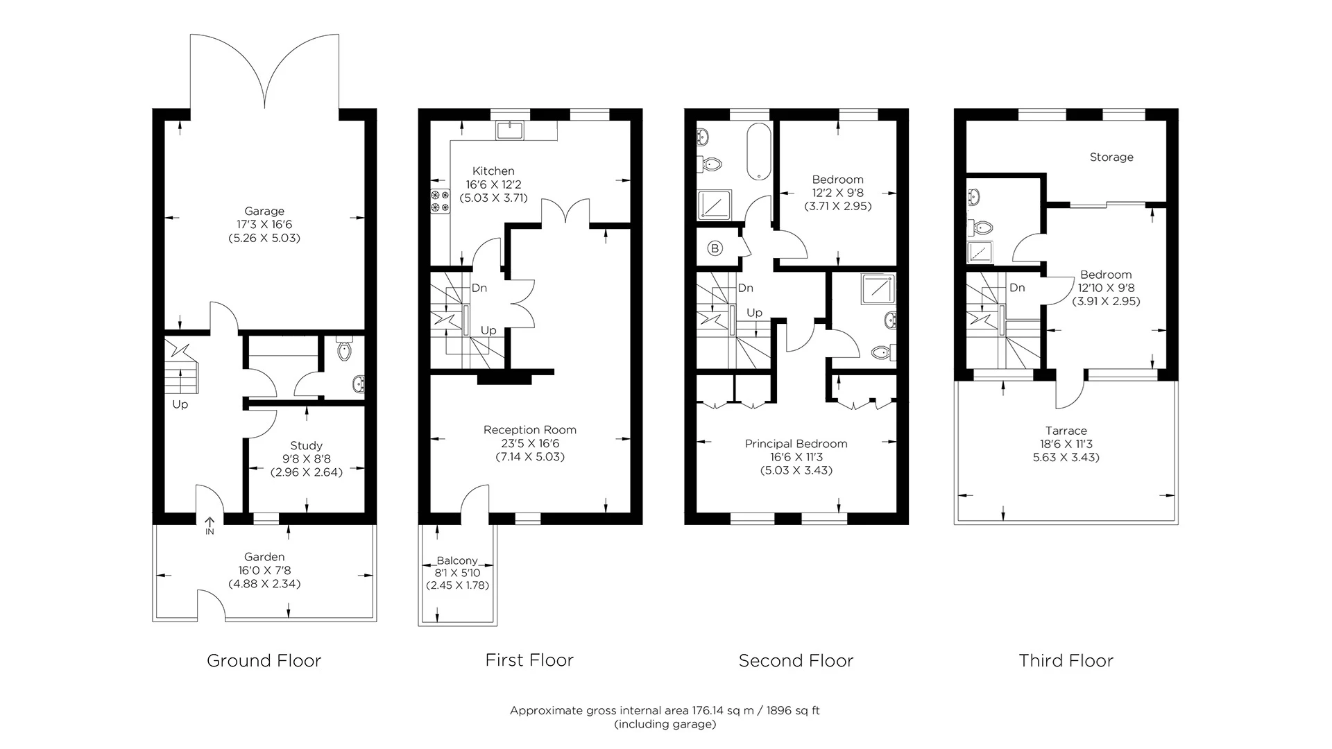
Four bedrooms

Town house

Double Garage

3 and 1/2 Bathrooms

Large Terrace

Catchment Area

Another Sold in Ropemakers Fields, Limehouse E14 8BX. Qualified buyers are seeking similar homes to buy. Contact us now if you are thinking of selling. Ropemakers Fields is on the historic and highly desirable Narrow Street, Limehouse E14. This freehold townhouse offers the finest superior living in a prime position. The house has been refurbished in recent years and is in pristine condition, incorporating modern design with the highest quality finish, creating a unique, luxurious home. The property offers a cosy double room on the ground floor ideal for working from home, a bathroom and access to a double garage; the first floor comprises a large living room and a modern kitchen, three further bedrooms, two ensuites and an expansive terrace accessible from the main bedroom. Limehouse Station provides excellent transport links, making the commute more accessible, and allows easy access to Canary Wharf and its array of trendy shops and bars. There are bars and restaurants along the river nearby, which adds convenience.

Nearest station: Westferry (0.29 miles)
Borough: Tower Hamlets
Council tax band: G
EPC: C
Tenure: Freehold

Virtual Tour

Location

Floor Plan

Floor Plan

Property Images

Photo 1
Photo 2
Photo 3
Photo 4
Photo 5
Photo 6
Photo 7
Photo 8
Photo 9
Photo 10
Photo 11
Photo 12

Arrange a Viewing

This property is currently Sold. To add your name to our Reserve Buyers List, please provide your details below, and we will contact you to discuss your requirements.

Make an Enquiry

This property is Sold, but you can still provide your details below. We will add your name to our Reserve Buyers List and contact you to discuss your property needs.

Mortgage calculator

Mortgage Details

Results

Stamp duty calculation

See full breakdown

Total SDLT due

Below is a breakdown of how the total amount of SDLT was calculated

Up to £0k (Percentage rate 0 %)

Above £0k and up to £0k (Percentage rate 0 %)

Above £0k and up to £0k (Percentage rate 0 %)

Above £0k and up to £0k (Percentage rate 0 %)

Above £0k and up to £0m (Percentage rate 0 %)

Above £om (Percentage rate 0 %)

Please note: This is for illustrative purposes only. The above calculator should not be relied upon when making financial decisions. Please seek advice from a specialist financial provider.

Property Reference: ALEXN_002486

IMPORTANT NOTICE FROM ALEX NEIL

Property descriptions are subjective and used in good faith as an opinion rather than statements of fact. The owner provided information relating to title, tenure, service charges and ground rent information. Therefore, please make specific enquiries to ensure that our descriptions match your expectations of the property. Floor plan measurements are approximate and for illustrative purposes only. Furthermore, we have not tested any services, systems or appliances at this property. And we strongly recommend that you verify all the provided information on inspection and that your surveyor and conveyancer further confirm details. Also, market conditions and property values regularly fluctuate. And showcased sold properties demonstrate our previous successes rather than indicate live property values.

Industry awards

Have confidence knowing you’re partnering with an award-winning agent, honoured with numerous five-star industry accolades for exceptional satisfaction.

Property valuations

Our experienced valuers will provide expert guidance on pricing, market conditions, and a clear, proactive marketing strategy tailored to your needs.

Tailored marketing

We use a multi-channel international marketing strategy, boosting your property’s reach through social media and top UK and global property portals.

Our credentials

All staff members adhere to the Property Ombudsman Code of Practice, ensuring the highest standards of integrity, transparency and customer care.

Fees

Tenant Information

Refundable Holding deposit - 1 weeks rent

Security Deposit 5 weeks rent for annual rental under £50,000, or 6 weeks rent for annual rental over £50,000

Rent - The agreed monthly rent

Changes to tenancy - £50 inc VAT

Early termination charge - Not exceeding the landlord’s financial losses

Late payment of rent Interest of 3% above BoE base rate for each day the rent is late, once it is 14 days overdue

Replacement keys - Reasonable costs

Utilities, council tax, communication services, TV Licence etc Tenants own responsibility unless otherwise stated

Client Money Protection Scheme Membership details Alex Neil are members of CMP (client money protect)

Property Redress Scheme Membership details: Alex Neil are members of The Property Ombudsman. Membership number N00018.